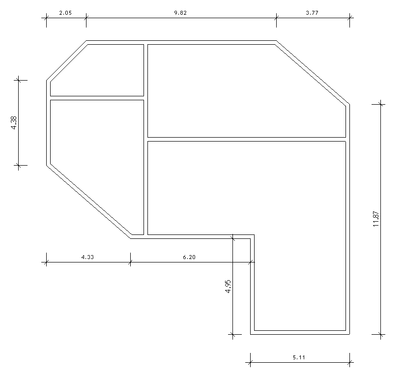
Si vous souhaitez créer des cotes orthogonales dans un projet Revit, c'est à dire qui s'alignent sur les axes verticaux et horizontaux de la vue, il suffit d'utiliser l'outil "Cote linéaire" qui diffère de la "Cote alignée". Cette dernière sert à mesurer entre chaque point ou chaque ligne, parallèlement à l'élément.
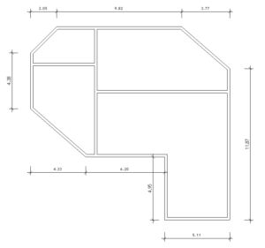
En effet, voici comment mesurent les Cotes alignées :
Pour créer des côtes orthogonales, sélectionnez la Côte linéaire dans l'onglet "Annoter"
Sélectionnez ensuite chaque point ou chaque ligne désirée pour coter de manière orthogonale.
A bientôt sur le blog Aplicit!





Laisser un commentaire