Gabarit de dessin pour mise en plan automatique (spécial tôlerie)

La mise en plan est souvent quelque chose d’indispensable pour les ateliers de fabrication, mais qui reste chronophage et répétitif.
Pour pallier ce besoin, les développeurs Autodesk ont créé sur Fusion les mises en plan automatique, en utilisant un template de gabarit de dessin.
Cela vous permet de garder la même architecture de vues sur tous vos dessins, et d’y incorporer si besoin des tables de pliage notamment pour les utilisateurs de tôlerie.
1- Création du gabarit de dessin :
- La 1ère chose consiste à créer le gabarit de dessin qui servira de template.
- Cliquez sur « Fichier » puis « Nouveau gabarit de dessin »
- Dans la fenêtre suivante, définissez vos différents paramètres (format de la feuille, orientation, unités …) puis cliquez sur « OK » :
- Commencez par sélectionner la représentation du plan.
Exemple : Pour la 1ère page du dossier de plans en représentation « Composant plié » :
- Puis positionnez votre Vue de base sur la feuille du plan (Remarque : vous pouvez choisir l’orientation de la vue de base, dans la rubrique « Apparence / Orientation », ainsi que le style Arêtes visibles/ ombré…, et l’échelle)
- Une fois la vue posée sur le plan, valider avec « Ok »
- Vous pouvez par exemple ensuite appliquer des vues projetées, avec le bouton « Espace réservé à la vue projetée » pour compléter cette 1ère page de plan de la pièce pliée :
- 1ère feuille complète :
- Cliquez ensuite sur le bouton « + » (ajout rapide) en bas à gauche, pour ajouter une page au dossier de plans :
- Sur cette 2ème page, vous pouvez par exemple, choisir comme représentation de la vue de base, la mise à plat :
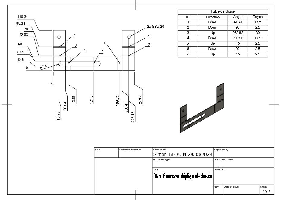
- Ainsi qu’un tableau de la Table de pliage :
- Cette table vous permet de respecter l’ordre de pliage, la direction (haut ou bas), l’angle de pliage et son rayon inter.
- Remarque : vous pouvez si besoin, déplacer les repères de numéros de pliage dans le plan, mais également renuméroter si besoin, la table se mettra à jour automatiquement.
- Une fois votre gabarit de dessin terminé, pensez à l’enregistrer :
2- Utilisation du gabarit en tôlerie (composant plié + mise à plat) :
- Créez votre conception de tôlerie :
- Pensez à faire une mise à plat de votre conception :
- Puis cliquez sur l’espace de travail « Dessin / De la conception » pour lancer la création du dossier en plan :
- Cochez « Automatique », et dans « destination / modèle » sélectionnez le gabarit de dessin que vous venez de créer et d’enregistrer :
- Votre dossier de plans est à présent dispo et généré en automatique, suivant les vues préréglées dans le gabarit de dessin :
- Bien sûr toutes les côtes restent modifiables et déplaçables si besoin.
Le gabarit de dessin pour permet de gagner énormément de temps sur la création de vos plans.
- Vous pouvez ensuite exporter votre dossier directement au format .pdf pour livrer à l’atelier.
Pour toute question supplémentaire n’hésitez pas à contacter notre support : support@aplicit.com
Rendez-vous le mois prochain pour un nouveau sujet, sur le Blog APLICIT ! 😉
Ces articles peuvent vous intéresser :






















