Indices de révisions sur feuilles livrables dans Revit
Indices de révisions sur feuilles livrables dans Revit.
Les indices de plans, autrement dit de feuilles livrables peuvent être implémentés dans votre cartouche Bim afin d'avoir toujours la dernière révision remplie.
Nous commençons par charger un cartouche comme celui disponible dans revit avec une nomenclature intégrée.
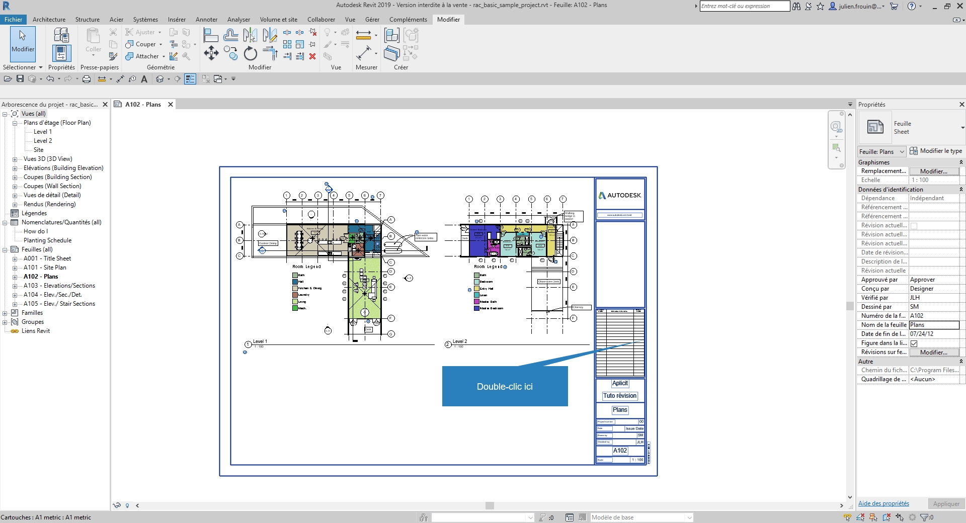
Ensuite modifier la famille de cartouche en double cliquant dessus ou en faisant "modifier famille" dans l'onglet modifications.
Ci-dessous la famille de cartouche ouverte.








Allons dans l'onglet gérer puis paramètres supplémentaires.

Puis le traiter par feuilles car les indices du projet sont liés à la maquette et non à la feuille. C'est à dire au plan.













et a bientôt avec notre équipe de blogueur sur Aplicit.com
Ces articles peuvent vous intéresser :

















Passer par l’onglet Vue pour acceder au tableau des révisions, ca va plus vite.
Sinon, il vaut mieux traiter les indices par feuilles et non par projet, sinon, vous allez vous retrouver avec de numéros d’indices incohérents sur vos feuilles.
Hate qu’il fasse une maj malgré tout car la gestion de tous les indices de toutes les feuilles se fait au même endroit, tout est mélangé, on a vite fait de se perdre quand il y a beaucoup de feuilles a gérer.