Revit Meuble étagère avec réseau paramétrique
Meuble étagère avec réseau paramétrique
Pour illustrer l’utilisation d’un réseau paramétrique nous allons partir sur la base d’un meuble disposant des paramètres suivants :
- Hauteur
- Largeur
- Profondeur
- Epaisseur
- Plan de référence Centre (élévation) à équidistance des plans Haut et Bas
- Matériau

En plus de cette famille de base nous allons imbriquer une famille d’étagère. L’idée étant de répartir cette étagère sur la hauteur de notre meuble tous les 20cm.
Notre famille étagère devra présenter les paramètres suivants :
- Epaisseur
- Largeur
- Profondeur
- Plan de référence Centre (élévation) à équidistance des plans Haut et Bas
- Matériau

Chargez ensuite la famille d’étagère dans la famille de départ.
La famille Etagère.rfa apparait dans l’arborescence de la famille du meuble.

La famille d’étagère héritera automatiquement des dimensions de la famille hôte (Epaisseur, Largeur, Profondeur, Materiau).
Evitez l’utilisation des accents et des espaces dans les noms de vos paramètres


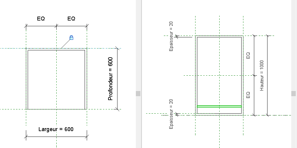
Note : Sur l’élévation ci-dessus à droite, j’ai modifié l’élévation de l’étagère afin de bien la mettre en évidence, sinon quoi elle était confondue avec la base de notre meuble.
Nous allons désormais pouvoir commencer le paramétrage réseau qui va nous permettre d’obtenir le bon nombre et le bon positionnement de nos étagères (tous les 20cm) quelle que soit la hauteur du meuble.

Ici le plan 1 nous servira de point de départ pour notre réseau, le plan 2 permettra de dimensionner l’écart de 20cm entre nos étagères.
Lorsque l’on crée un réseau linéaire (Onglet Modifier > Réseaux), nous avons le choix de déplacer notre premier élément vers le dernier ou vers le 2ème.
Avec l’option Dernier, on spécifie la portée totale du réseau. Les éléments du réseau sont espacés uniformément entre le premier et le dernier élément.
A contrario, avec l’option 2ème, on spécifie l'espacement entre chaque élément du réseau. Les autres éléments du réseau s'affichent après le second élément.
Ainsi, dans notre cas, nous allons réaliser un réseau avec l’option 2ème car nous souhaitons contrôler l’espacement entre chaque étagère (les 20cm d’écart). Créez donc via l’outil Réseau une seconde occurrence de l’étagère en direction du haut tout en conservant bien l’option Déplacer vers : 2ème sous le ruban.
Une fois créée, cadenassez-la au plan de réf. 2 créé précédemment. Ensuite, ajoutez ces 2 côtes paramétriques :
- Espace, pour spécifier les 20cm d’écart entre chaque étagère,
- Centrage, valeur qui sera calculée par la suite afin de centrer nos étagères sur la hauteur.
Enfin, vous allez libeller le réseau avec un paramètre Nombre.


Maintenant, nous allons rentrer des formules dans la fenêtre Type de famille
Tout d’abords, pour le paramètre nombre, rentrez la formule suivante (dans la colonne Formule) : Hauteur / Espace
Ainsi, pour un meuble de par exemple 100cm de haut, nous aurons 100/20=5 étagères, pour un meuble de 200cm nous en aurions automatiquement 10…
Pour le centrage, rentrez là aussi une formule dans la colonne concernée : (Hauteur - (Espace * (Nombre - 1))) / 2
Ici, nous cherchons à obtenir la même distance entre la première et la dernière étagère jusqu’au meuble. On récupère donc la hauteur totale du meuble à laquelle on soustrait le nombre d’espace moins 1 (car pour 3 étagères par exemple il n’y a bien que 2 espaces de 20cm…). Pour finir, on divise le tout par 2 pour répartir cette dimension en haut et en bas du meuble.
Attention, pour que les formules fonctionnent correctement il est impératif :
- De ne pas faire faute d’orthographe (bien respecter aussi minuscule et majuscule de chaque nom de paramètre)
- De ne pas faire mélanger paramètre de type et d’occurrence (ici tout est en paramètre de type).

Ainsi, dès lors que vous modifierez les dimensions du meuble, toutes les étagères du réseau seront bien contraintes sur les bords du meuble.
Votre famille est maintenant terminée, vous pouvez la tester avec différentes dimensions, les étagères s’adapteront correctement quelles que soient les dimensions choisis (Hauteur, Espace, Largeur...).

Cela donnera de l’air à votre meuble en augmentant la dimension du centrage en haut et en bas.
Ces articles peuvent vous intéresser :








