Les unités de saisie dans REVIT
Qu'est-ce que les unités de saisie dans REVIT ?
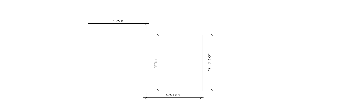
Petite astuce très pratique pour la saisie des valeurs dans Revit, sans avoir à changer d'unité en cours de modélisation.
Dans notre exemple, les unités dessin sont en mètres.
Maintenant, nous allons modéliser le projet avec différentes unités sans pour cela changer l'unité dessin à chaque fois.
On commence par entrer de mètres comme dans le projet de base, puis des millimètres, des centimètres et des Pieds er fraction de pouces.
A bientôt sur le blog Aplicit !
Ces articles peuvent vous intéresser :





